友情链接
全国服务热线
400-163-8866
本周热点问题

liuhuisunjiayi
2022-05-09 15:59:17
全部回答
您好,很高兴能为您解答问题!
以下供参考
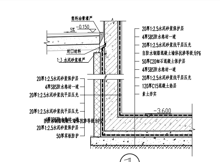
右侧:素土地基检验批、混凝土施工检验批、卷材防水层检验批+隐蔽、混凝土施工检验批、防水混凝土检验批+混凝土施工检验批、卷材防水层检验批+隐蔽、混凝土施工检验批
外侧的聚苯板做墙体节能检验批+隐蔽
监理有其他要求的话优先按监理要求来做
望采纳!
举报
您可能感兴趣的问题 更多
友情链接
全国服务热线
400-163-8866