友情链接
全国服务热线
400-163-8866
本周热点问题

zygrc4gac9e8jaq
2025-02-18 17:39:51
全部回答
需要确认下:
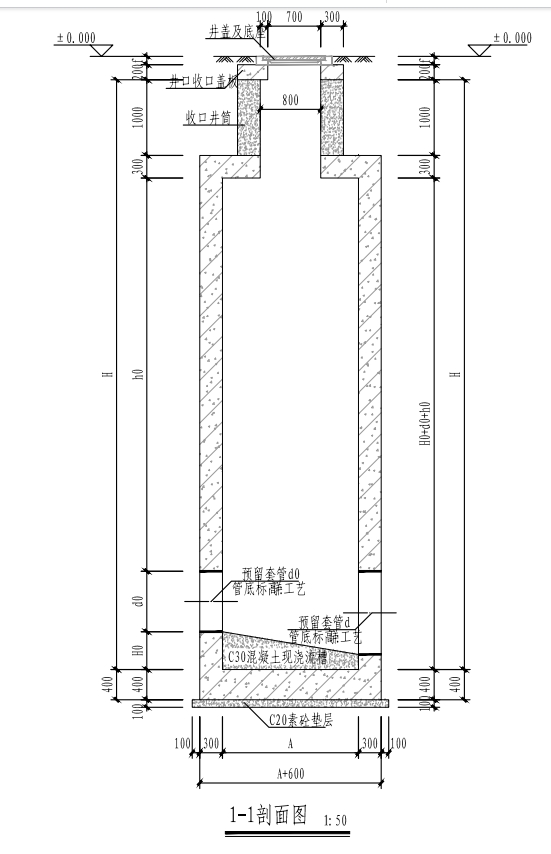
是市政给排水的检查井吗?

举报
全部回复
zygrc4gac9e8jaq白银专家
2025-02-19 20:25:49
回复
举报
您可能感兴趣的问题 更多
友情链接
全国服务热线
400-163-8866