友情链接
全国服务热线
400-163-8866
本周热点问题

G-Dragon
2025-10-13 10:56:30
收藏
全部回答
已采纳
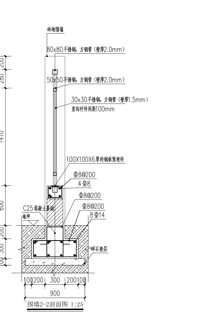
以下供参考:碎石垫层检验批、模板钢筋混凝土检验批、钢筋做隐蔽验收、砖砌体检验批、预埋件做隐蔽验收、护栏和扶手检验批
举报
您可能感兴趣的问题 更多
友情链接
全国服务热线
400-163-8866