友情链接
全国服务热线
400-163-8866
本周热点问题

pj20191215083729932
2025-12-22 16:20:35
全部回答
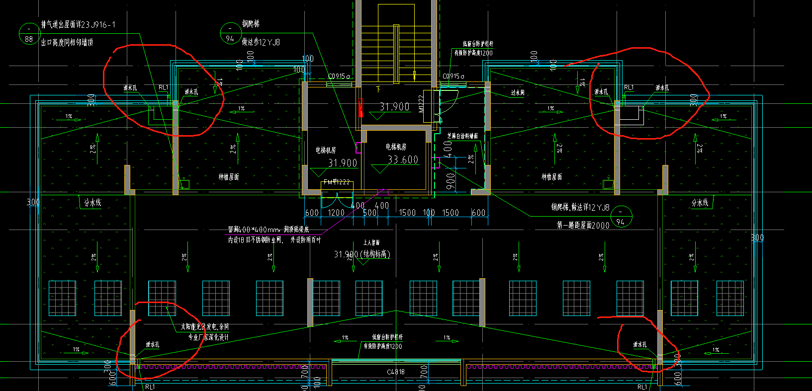
图上的字看不清,看着象是出屋面洞或上人口
水落口不会这么大
举报
您可能感兴趣的问题 更多
友情链接
全国服务热线
400-163-8866