友情链接
全国服务热线
400-163-8866
本周热点问题

zyhswpks3gzxhwch
2025-12-30 10:04:14
全部回答
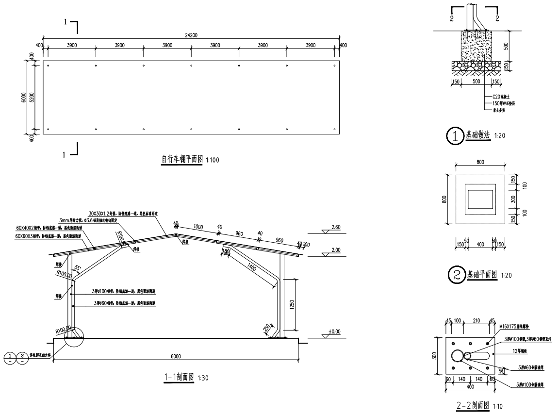
用钢结构的做吧,别的没能用的表格
基础做砂石地基检验批混凝土施工检验批,然后单层钢结构安装检验批,耐力板参考这个答案

举报
举报
您可能感兴趣的问题 更多
友情链接
全国服务热线
400-163-8866