友情链接
全国服务热线
400-163-8866
本周热点问题

zyzqpfkncy5n4un
2022-05-09 10:02:49
全部回答
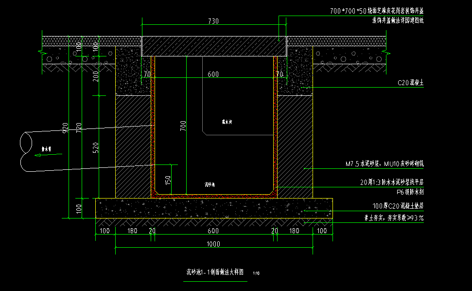
监理同意的话,可以用井室的检验批
举报
您可能感兴趣的问题 更多
友情链接
全国服务热线
400-163-8866