友情链接
全国服务热线
400-163-8866
本周热点问题

ul20171031100840546
2026-03-18 11:10:13
全部回答
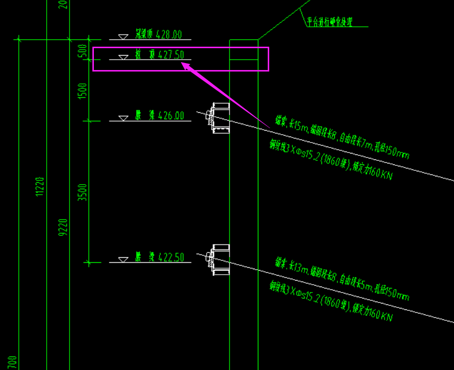
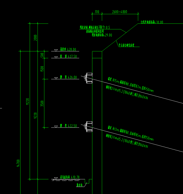
可以写427.5这个绝对标高
相对标高的话,430-428.8

举报
举报
友情链接
全国服务热线
400-163-8866